aluplast Systeme
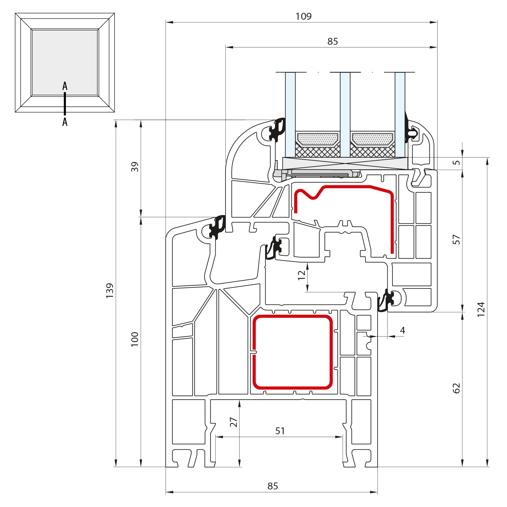
ALUPLAST IDEAL 8000- 100mm
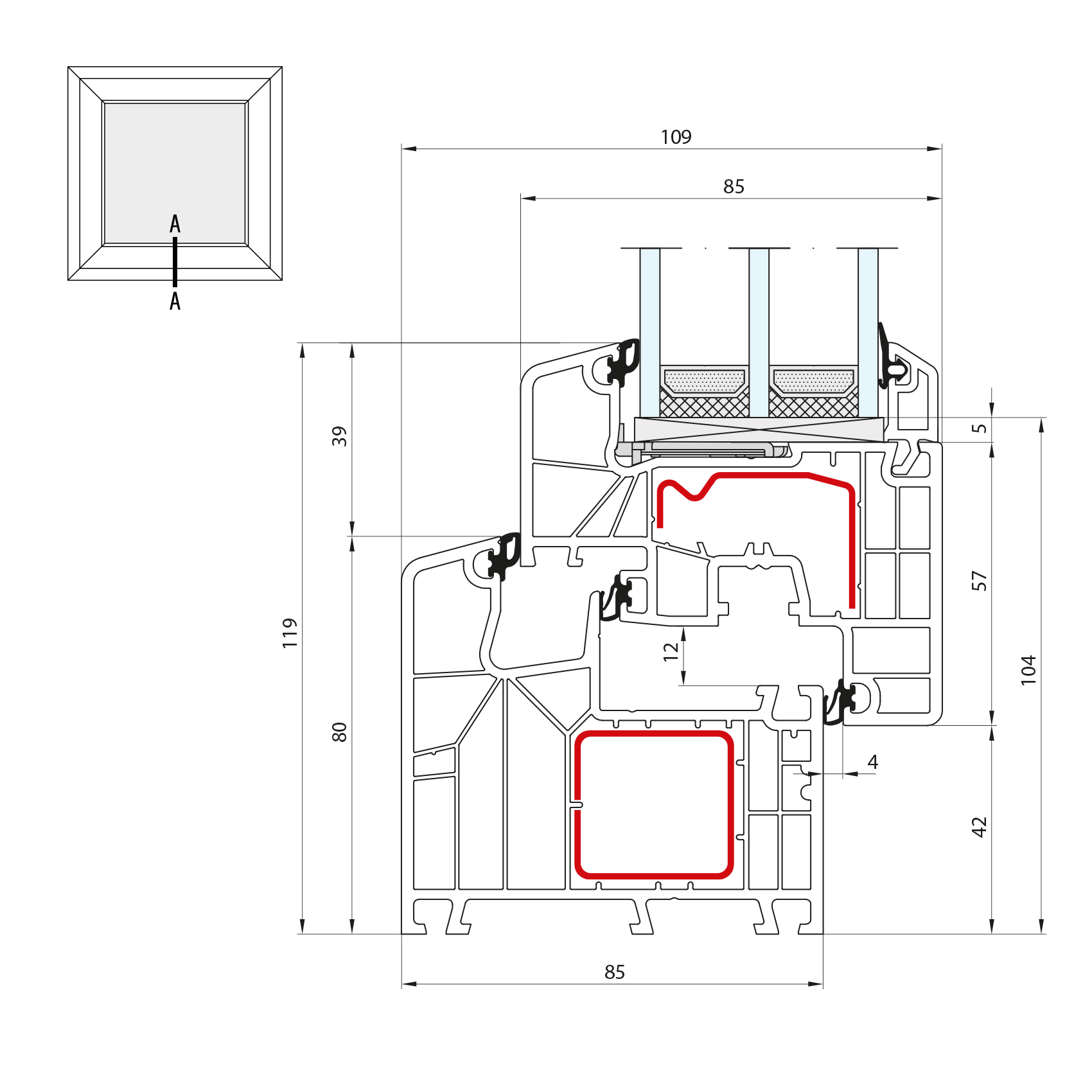
ALUPLAST IDEAL 8000- 80mm
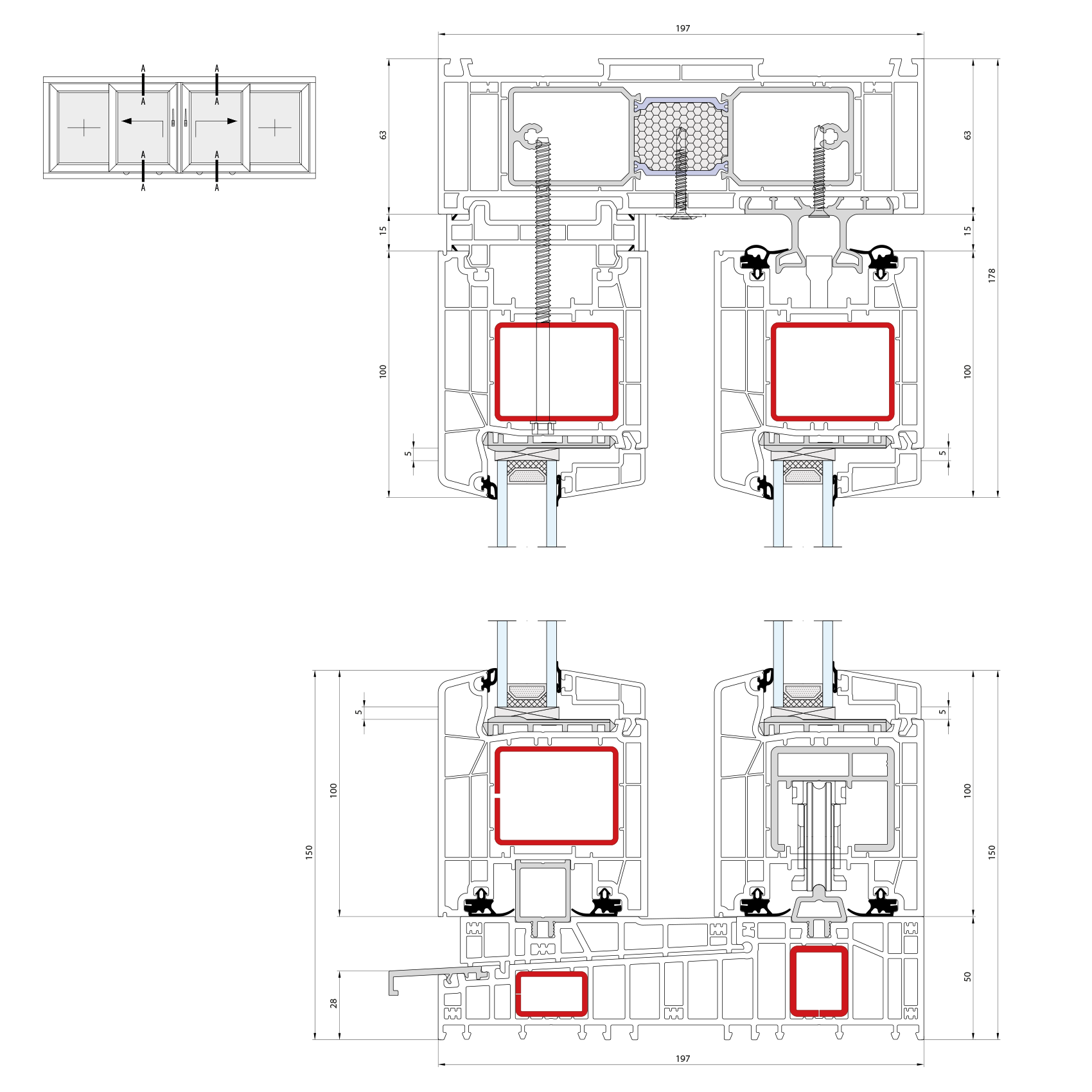
HST Schema C aluplast
ALUPLAST ÜBERSICHT
TECHNISCHER KATALOG
ALUPLAST IDEAL 8000- 100mm
ALUPLAST IDEAL 8000 180×04 – 180×22

- Fensterrahmen: 100 mm
- Türrahmen: 100 mm
- Fensterflügel: 77 mm

Entwässerung: 5,7cm Höhe



ALUPLAST IDEAL 8000- 80mm
ALUPLAST IDEAL 8000 180×05 – 180×20
- Fensterrahmen: 80 mm
- Türrahmen: 80 mm
- Fensterflügel: 77 mm

HST Schema C aluplast
- Schieberahmen: 63 mm
- Schiebeflügel: 100 mm
- Schwelle: 50 mm
- Einbautiefe: 197 mm

ALUPLAST ÜBERSICHT
| Produkt-bezeichnung | Produkttyp | Ausführung | Maximale Abmessungen |
ID 4000 | Fenster | einflügelig | 1500×1500 |
| zweiflügelig | 1700×1700 | ||
| dreiflügelig | 2090×1570 | ||
| vierflügelig | 2100×1700 | ||
| Fensterset (Kopplung) | 1390×2200 | ||
| fix | 1500×2100 | ||
Balkone | einflügelig | 1000×2380 | |
| zweiflügelig | 1500×2190 | ||
| einflügelig mit Schwelle | 1130×2565 | ||
| zweiflügelig mit Schwelle | 1730×2565 | ||
Tür | einflügelig nach innen öffnend | 1100×2200 | |
| zweiflügelig nach innen öffnend | 1800×2400 | ||
| Tür-Kopplungrnnach innen öffnend | 1830×2465 | ||
| einflügelig nach außen öffnend | 1200×2200 | ||
| zweiflügelig nach außen öffnend | 2100×2470 | ||
| Patio | Schema A | 2630×2400 | |
ID 4000 Reno (40mm + 65mm) | Fenster | einflügelig | 1500×1500 |
| zweiflügelig | 1700×1700 | ||
| dreiflügelig | 3000×1700 | ||
| vierflügelig | – | ||
| Fensterset (Kopplung) | – | ||
| fix | 1700×2600 | ||
Balkone | einflügelig | 1130×2630 | |
| zweiflügelig | 1730×2660 | ||
| einflügelig mit Schwelle | 1130×2570 | ||
| zweiflügelig mit Schwelle | 1730×2570 | ||
| Patio | Schema A | 2630×2400 | |
ID 4000 new | Fenster | einflügelig | 1500×1500 |
| zweiflügelig | 1700×1700 | ||
| dreiflügelig | 2090×1600 | ||
| vierflügelig | – | ||
| Fensterset (Kopplung) | – | ||
| fix | 1600×2210 | ||
Balkone | einflügelig | 1000×2380 | |
| zweiflügelig | 1600×2210 | ||
| Patio | schema A | 2630×2400 | |
ID 5000 | Fenster | einflügelig | 1500×1500 |
| zweiflügelig | 1500×1500 | ||
| dreiflügelig | 2380×1570 | ||
| vierflügelig | 2400×1700 | ||
| Fensterset (Kopplung) | 1480×2380 | ||
| fix | 1490×2300 | ||
Balkone | einflügelig | 1000×2380 | |
| zweiflügelig | 1490×2380 | ||
| einflügelig mit Schwelle | 1100×2200 | ||
| zweiflügelig mit Schwelle | 1570×2200 | ||
| Patio | schema A | 2600×2180 | |
ID 5000 Reno | Fenster | einflügelig | 1500×1500 |
| zweiflügelig | 1500×1700 | ||
| dreiflügelig | 2380×1570 | ||
| vierflügelig | 2400×1700 | ||
| Fensterset (Kopplung) | 1480×2380 | ||
Balkone | einflügelig | 1000×2500 | |
| zweiflügelig | 1600×2500 | ||
| einflügelig mit Schwelle | 1000×2480 | ||
| zweiflügelig mit Schwelle | 1600×2480 | ||
| Patio | scheme A | 2500×2100 | |
ID 5000 Reno (40mm) | Fenster | einflügelig | 1460×1430 |
| zweiflügelig | 1460×1730 | ||
Balkone | einflügelig | 860×2180 | |
| zweiflügelig | 1600×2250 | ||
| einflügelig mit Schwelle | 1000×2480 | ||
| zweiflügelig mit Schwelle | 1600×2480 | ||
ID NL 7000 | Tür | einflügelig mit Schwelle + Fix | 2092×2476 |
| Fenster | einflügelig + Fix | 1634×2495 | |
| Balkone | zweiflügelig | 2092×2495 | |
ID 7000 NEW | Fenster | einflügelig | 1500×1500 |
| zweiflügelig | 1700×1700 | ||
| dreiflügelig | 3000×1700 | ||
| vierflügelig | 4000×1700 | ||
| Fensterset (Kopplung)t | 2500×2500 | ||
| fix | 1980×2300 | ||
Balkone | einflügelig | 1000×2375 | |
| zweiflügelig | 1980×2350 | ||
| einflügelig mit Schwelle | 1000×2000 | ||
| zweiflügelig mit Schwelle | 1980×2350 | ||
Tür | einflügelig nach innen öffnend | 1090×2390 | |
| zweiflügelig nach innen öffnend | 1200×2490 | ||
| dreiflügelig nach innen öffnend | – | ||
| Tür-Kopplungrnnach innen öffnend | 1200×2490 | ||
| einflügelig nach außen öffnend | 1090×2390 | ||
| zweiflügelig nach außen öffnend | 1200×2490 | ||
| dreiflügelig nach außen öffnend | – | ||
| nach außen gefaltet | 1200×2490 | ||
ID70 | Kipp-Dreh-Fensterrn(English Tilt) | einflügelig Dreh-Kipp | 1510×1680 |
| einflügelig Kippfenster | 1240×1240 | ||
| zweiflügelig Dreh | 1455×1390 | ||
| fix | 2000×2000 | ||
Energeto 8000 | Fenster | einflügeligt | 1500×1500 |
| zweiflügeligt | 1700×1700 | ||
| dreiflügelig | – | ||
| vierflügelig | – | ||
| Fensterset (Kopplung) | – | ||
| fix | 2350×2500 | ||
Balkone | einflügelig | 1100×2400 | |
| zweiflügelig | 2350×2500 | ||
Intertec 85 | Fenster | einflügelig | 1500×1600 |
| zweiflügelig | 1700×1700 | ||
| dreiflügelig | 3000×2100 | ||
| vierflügelig | 4000×1700 | ||
| Fensterset (Kopplung) | – | ||
| fix | 1500×1600 | ||
Balkone | einflügelig | 1000×2400 | |
| zweiflügeligt | 2000×2400 | ||
| dreiflügelig | 3000×2100 | ||
| vierflügelig | 4000×2100 | ||
| Smart Slide | Schiebetürr | schema A | 3100×2400 |
| Multi-Sliding 80 | Schiebetürr | schema A | 1900×2200 |
HST 85 | Basic | schema A | 6000×2800 |
Standard | |||
schema C | 6500×2800 | ||
Premium | |||
| Duo-Slide 60 | Schiebetürr | schema A | 2500×2200 |
| Multi-sliding 96 | Schiebetürr | schema A | 3500×2200 |
NORD -LINE | Fenster | einflügelig | 1230×1480 |
| zweiflügelig | – | ||
| Fensterset (Kopplung) | 1600×1601 | ||
| fix | 1600×1601 |
TECHNISCHER KATALOG


